Umfangreiche Leistungen:
Unser technisches Büro für Bauwesen

Sie wollen ebenfalls ein Projekt mit dem technischen Büro für Bauwesen realisieren? Dann sollten wir uns unbedingt kennenlernen! Michael Weng und sein Team freuen sich auf Ihre Nachricht. Vereinbaren Sie jetzt ein Gespräch und lassen Sie uns gemeinsam Ihre Bauprojekte zum Erfolg führen.

Wir planen gründlich, wenn Sie bauen möchten
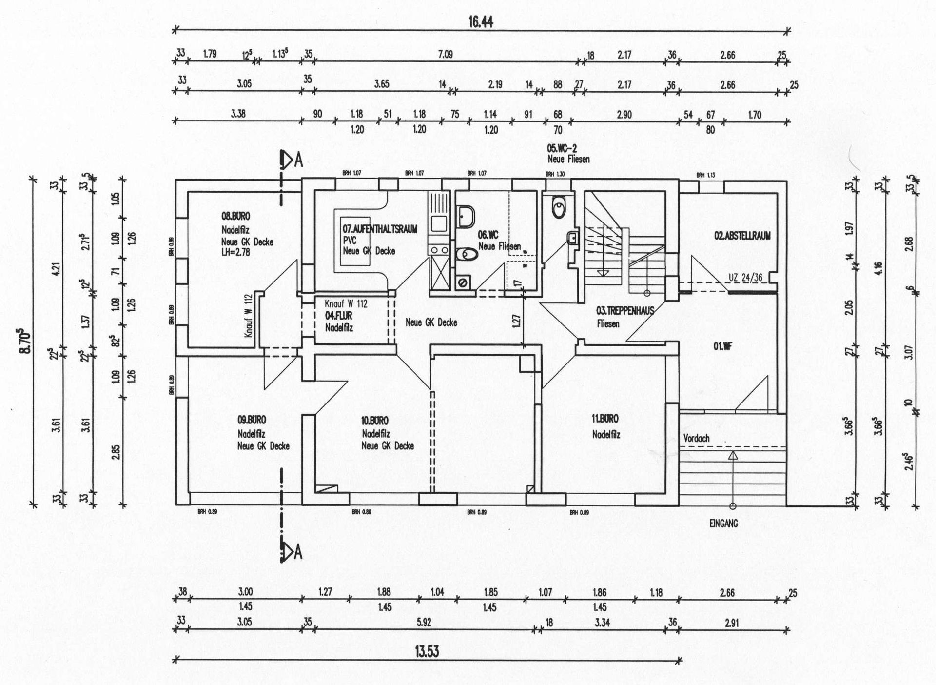
Als Spezialisten in Sachen Bauprojekte stellt unser Team für Sie Baugesuche und nimmt Werkplanungen vor. Des Weiteren führen wir Ausschreibungen durch. Anhand dieser binden wir die benötigten Gewerke effizient in den Bauprozess ein. Gerne können Sie unseren erfahrenen Mitarbeitern auch die Bauleitung übertragen. In diesem Rahmen kümmern sie sich unter anderem um die Prüfung aller Rechnungen.
City skyline

Wir planen Ihr Bauvorhaben von Anfang bis Ende
Wir bieten Ihnen umfassende Planungsdienstleistungen, darunter Baugesuche gemäß LBO § 43 Abs. 4 sowie Werk- und Ausführungsplanung. Bei uns steht die Zusammenarbeit im Fokus: Wir arbeiten eng mit Architekten und Handwerkern zusammen, um detaillierte technische Ausarbeitungen zu ermöglichen. Vertrauen Sie auf unser Fachwissen und unsere Erfahrung für erfolgreiche Bauprojekte.

Ausschreibung und Vergabe
Wir sind ein erfahrenes Technisches Büro für Bauwesen und verfügen über umfassende Kenntnisse im Bereich Ausschreibungen. Unser kompetentes Team kümmert sich um die Einholung verschiedener Angebote und die Vergabe. Wenn Sie ein Haus bauen möchten, können Sie uns auch die Bauleitung anvertrauen. Wir betreuen Ihr Projekt engagiert und überwachen den Baufortschritt genau. Darüber hinaus bieten wir aussagekräftige Leistungsbeschreibungen für die beteiligten Gewerke, um unseren Service abzurunden.
City skyline

Messtechnik-Lösungen für effiziente und sichere Bauprojekte
Unser technisches Büro für Bauwesen bietet umfassende Messtechnik-Lösungen. Mit langjähriger Erfahrung und Expertise liefern wir präzise Messungen und Analysen, um Bauprojekte effizient zu planen und durchzuführen. Unsere professionelle Messtechnik unterstützt Architekten, Ingenieure und Bauunternehmen dabei, Bauwerke sicher und qualitativ hochwertig zu realisieren.
Vertrauen Sie auf unsere zuverlässigen Messinstrumente und unseren erstklassigen Service.

Luftdichtigkeit – Blower Door-Messungen
Luftdichtigkeitsprüfungen spielen eine wichtige Rolle bei der Verringerung von Wärmeverlusten und der Vermeidung von Bauschäden. Moderne Geräte wie die Blower Door, Airflow und Gann werden zur Messung eingesetzt, wobei die Grundlagen dieser Messungen in verschiedenen DIN-Normen festgelegt sind. Das Ziel besteht darin, Energie einzusparen und die Bildung von Schimmelpilzen zu verhindern. Durch kontrollierte Lüftung wird der Komfort verbessert und Zugerscheinungen reduziert. Die gesetzlich vorgeschriebenen Grenzwerte für den Luftwechsel liegen bei 3,0 h-1 bei natürlicher Lüftung und 1,5 h-2 bei Verwendung einer Lüftungsanlage.

Fachkundige Energieberatung für Alt- und Neubau
Planen Sie einen Neubau? Dann profitieren Sie von unserer umfassenden Energieberatung. Aber auch wenn Sie in einem Altbau leben, können wir Ihnen helfen. Durch eine Energieberatung lassen sich oft Ressourcen sparen und somit effektiv die Kosten senken. Wir stehen Ihnen gerne beratend zur Seite.
Als Sachverständiger für Energieeffizienz bieten wir Ihnen auch Leistungen wie neutrale und unabhängige Energieberatung sowie die Ausstellung des Energiebedarfsausweises (Energiepass) gemäß dem aktuellen GebäudeEnergieGesetz (GEG) (Nachfolger der Energieeinsparungsverordnung (EnEV)) an.
Da jedes Haus so einzigartig ist wie die Menschen, die darin leben, sind diese Leistungen unerlässlich. Sowohl die Gebäudesubstanz als auch die Haustechnik spielen eine wichtige Rolle. Eine Energieberatung bietet hier enorme Einsparpotenziale.



